
8年間留学・一年間日本企業勤務した経営者は、熱心満々な若いスタッフと一緒にその経験を活かして、ベトナム国内建築デザインを提供しています。又、日本の建築設計会社から、30~40年前建設された古いマンション等の改装設計、住宅新築設計等を受託しています。設計以外、小規模建築施工、中規模建築施工管理なども行っています。
建築設計だけでなく、電気図面加工も承っています。
建築設計経験を活かし、日本で研修した後、日本の電気図面を大手会社から受けると共に、日本の古い物件の青焼や製本などをCADデータ化する仕事も実績しております。以外、機械図面、設備図面も近い将来受託できるように実務
| CanaTARO | JWCAD |
![]() |
![]() |
| 塩害(海からの距離) | 平面立面 |
![]() |
![]() |
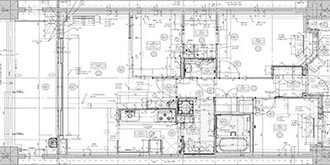
| 建築図面 | 電気設備図面 |
![]() |
![]() |
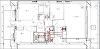
| 衛星設備図面2D | 衛星設備図面3D |
![]() |
![]() |
| 空調設備図面2D | 空調設備図面3D |
![]() |
![]() |
| 仮設図 Scaffold Drawing | 施工図 Contruction Drawing |
![]() |
![]() |
| 積算拾い | 鉄骨製造図 |
![]() |
![]() |
| 現況図 | 平面図 |
![]() |
![]() |
| 展開図 | 天井図 |
![]() |
![]() |
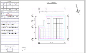
| 鳥瞰図 | 内観パース |
![]() |
![]() |
3D My Home Design、3D Interrior Design、...